GALLERY
PROPERTY DETAIL
Key Details
Sold Price $205,0003.0%
Property Type Single Family Home
Sub Type Single Family Residence
Listing Status Sold
Purchase Type For Sale
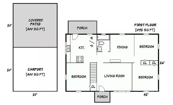
Square Footage 1, 092 sqft
Price per Sqft $187
Subdivision Forest Heights
MLS Listing ID 4259215
Sold Date 06/30/25
Bedrooms 3
Full Baths 1
Abv Grd Liv Area 1,092
Year Built 1957
Lot Size 0.340 Acres
Acres 0.34
Property Sub-Type Single Family Residence
Location
State NC
County Catawba
Zoning OI
Rooms
Basement Exterior Entry, Interior Entry, Storage Space, Sump Pump, Unfinished
Main Level Bedrooms 3
Building
Lot Description Cleared
Foundation Basement
Sewer Public Sewer
Water City
Level or Stories One
Structure Type Aluminum
New Construction false
Interior
Interior Features Split Bedroom, Storage
Heating Oil
Cooling Central Air
Flooring Carpet, Linoleum
Fireplaces Type Living Room, Wood Burning Stove, Other - See Remarks
Fireplace true
Appliance None
Laundry Electric Dryer Hookup, In Basement, In Kitchen
Exterior
Carport Spaces 2
Utilities Available Cable Available, Electricity Connected
Roof Type Composition
Street Surface Gravel,Paved
Porch Covered, Patio, Other - See Remarks
Garage false
Schools
Elementary Schools Webb A. Murray
Middle Schools Arndt
High Schools St. Stephens
Others
Senior Community false
Restrictions Other - See Remarks
Acceptable Financing Cash, Conventional
Horse Property None
Listing Terms Cash, Conventional
Special Listing Condition Estate
SIMILAR HOMES FOR SALE
Check for similar Single Family Homes at price around $205,000 in Conover,NC

Pending
$269,990
4874 Stone DR #125, Conover, NC 28613
Listed by Matthew Osborne of WJHBNCLLC4 Beds 3 Baths 1,965 SqFt
Active Under Contract
$274,000
5309 Hall ST, Conover, NC 28613
Listed by Jennifer Crowe of Keller Williams High Country2 Beds 2 Baths 1,553 SqFt
Active Under Contract
$249,900
952 30th ST NE, Conover, NC 28613
Listed by Candace Tait of The Joan Killian Everett Company, LLC3 Beds 2 Baths 1,428 SqFt
CONTACT




